Burlasite
Tallin Architecture Biennale
2021
The installation competition called on emerging architects to design an experimental installation in front of the Estonian Museum of Architecture, focusing on the concept of slowness and aligning with TAB 2022’s main theme: “Edible. Or, the Architecture of Metabolism”. Our winning proposal ‘Burlasite’ was selected from over 100 international entries.
The project is constructed of a 3D printed timber formwork made of sawdust waste from the timber industry’s precise machinic processes. During this process the structure is inoculated with mushroom fibres that slowly consume and replace it, leaving only the hardened structural mycelia behind.
This project takes the base structure of Martin Heidegger’s abandoned Hut as the host form, stripped of its original cladding, leaving only its timber frame, as the armature for both a growth algorithm and a biological system to reconfigure and grow upon. The Hut in its original form is an imposition on the forest, a rearrangement of extant timber resources into a form that can no longer sustain the ecosystem in earnest, only its human occupants.

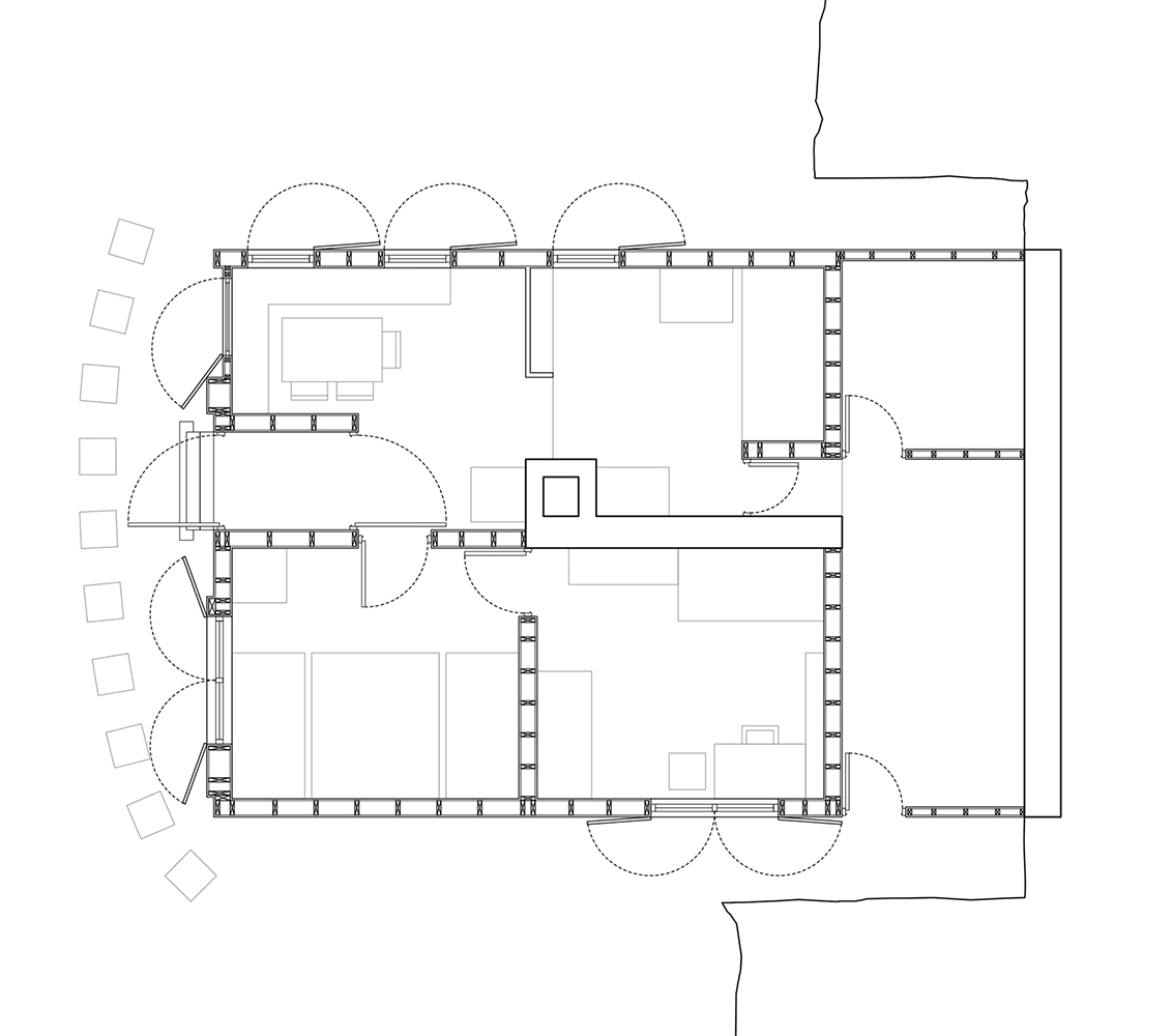
Floor plan of Martin Heidigger’s hut in the Black Forest Mountains.

Remnants of the timber structure after it has been consumed by the mycelia.
The host form, Martin Heidegger’s hut, is deconstructed and reformed, in service of an ecosystem of mycelia. As the mycelia grow vertically, from the underlying floor plan through the timber members, the new configuration transforms the hut into something that more closely resembles its natural origins.

The project incorporates advancements in the use of a bio-composite waste material as a formwork/armature for a Mycelial colony. Which could lead to alternate methods of building construction and the application of natural or biodegradable materials that are less resource (carbon) intensive and less impactful on the environment at their end-of-life. Creating an architecture that centres on its entropic conditions; decay, whole-of-life impact and end-of-life recycling.
Beyond the everyday concerns of maintenance and longevity, which register the time scale of architecture, its entropic qualities have conventionally been overlooked and excluded from our understanding of it. The prevailing view is that a decayed architecture is an obsolete one. It is given a name, the ‘ruin’, and we either seek to preserve it; or to erase it, with the view that no value can be found in its material or immaterial qualities.
This project seeks to challenge and invert this understanding — that rather, an architecture of decay is not in and of itself without utility, meaning or purpose.